UNNO HOUSE
- 米沢市
- 松川小学校
- 第一中学校
通町6丁目No.2
建築中
付属内容
- トリプルガラスサッシ
- 寒冷地・暖房エアコン
- 外 構
- 家具・カーテン
- 照明・網戸
NOTE
置賜エリア
通町6丁目No.2
- 米沢市
- 松川小学校
- 第一中学校
- 価 格
- 3,790万円
- 建物面積
- 106.92㎡(32.34坪)
- 土地面積
- 389.28㎡(117.75坪)
- 築年月
- 2026年7月完成予定
松川小まで徒歩4分
」
・セブンイレブンまで徒歩9分
・マックスバリュまで車で7分
小学校が近いので、小さなお子様の登下校も安心です。
」
【配置図】

※配置図は設計段階のイメージであり実際と異なる場合がございます。
」
住宅ローン返済例
月々 81,417円
ボーナス時 92,043円
※3790万円借入|40年返済|変動金利1.05%の場合
」

この他にも...
長期保証最長60年!
シロアリ保証最長30年!
住宅設備機器保証10年!
「建売が欲しいけど性能やサポート面で心配...」
そんなお客様に特におすすめの物件です!
」

■リビング・ダイニング・キッチンがゆるやかに区切られるL字型のLDK。
※完成イメージ
」
先行申込受付中です。
どうぞお気軽にお問い合わせください。
」
※掲載の写真は当社施工事例であり実際の物件とは異なります。
※掲載パースはデータ保護措置が講じられた有料版AIで作成しています。
機密情報の学習利用はなく、セキュリティと権利関係がクリアな環境で制作しているため安全です
※社会情勢等により完成予定時期が遅れる場合がございます。あらかじめご了承ください。
関連物件
アクセス
周辺環境
-

米沢松川小学校 徒歩4分
-

米沢第一中学校 徒歩40分
-

マックスバリュ米沢駅前店 車で7分
-

ヤマザワ 相生町店 車で7分
-

セブンイレブン 米沢通町4丁目店 徒歩9分
-

山上保育園 徒歩6分
-

米沢市立病院 車で4分
-

薬王堂 米沢東店 車で4分
-

米沢八幡原IC 車で9分
物件概要
| 所在地 | 米沢市通町6丁目16番33 |
|---|---|
| 価格 | 3,790万円 |
| 販売戸数 | 1戸 |
| 建物面積 | 106.92㎡(32.34坪) |
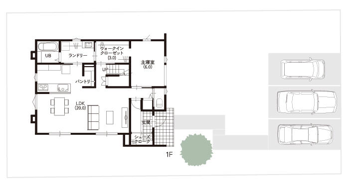
| 間取り | 3LDK |
| 建ぺい率・容積率 | 60%・200% |
| 建物構造 | 木造2階建 |
| 完成時期(築年月) | 2026年7月完成予定 |
| 取引態様 | 土地:販売代理、建物:売主 |
| その他負担金等 |
| 交通 | (山交バス)通町二丁目バス停まで徒歩2分 |
|---|---|
| 学区 | 松川小学校・第一中学校 |
| 総戸数 | 3戸 |
| 土地面積 | 389.28㎡(117.75坪) |
| 接道 | 東(市道)約6m |
| 用途地域 | 第二種中高層住居専用地域 |
| 主たる設備 | 公営水道、公共下水、東北電力 |
| 建築確認番号 | 第東日本26-03599号 |
| 情報登録日 | 2026年5月18日 |
| 次回更新予定日 |
備 考
価格公表日:2026年4月24日




