展示場/モデルハウス
Model House
山 形

それぞれの時間を楽しむ、
フレンチスタイルの家
2026年5月10日をもち、移設のためこちらの展示場はクローズとなります。
この機会にぜひ見にいらしてください。
」
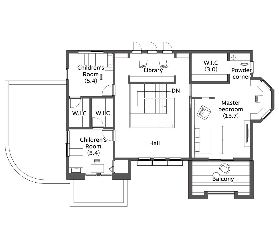
キッチン横のソファスペースや主寝室の書斎、
パウダーコーナーなど、家族みんながそれぞれの時間を
楽しむ空間がコンセプト。
上品であたたかい雰囲気のフレンチスタイルの住まいです。
」
>

」

□フレンチスタイルのLDK
・タイルやアイアンの手摺を多用したかわいらしい住空間
・出窓を利用したソファや書斎
」
」

」

□ホテルライクな主寝室
・書斎やパウダーコーナーを設けた主寝室
」
」

」

□ゆったりテラススペース
・リビング・ダイニングとつながるテラス
」
」
こちらの展示場にはキッズスペースをご用意しております。
また、こちらの展示場があるやましんハウジングプラザ平清水内にはオムツの交換スペースや授乳スペースのご用意も。
ご予約なしでのご見学も大歓迎です。
」
【家づくりとりあえず相談会】
家づくりはじめましての方向け!
「とりあえず」来てみたら役に立つ!
ご予約制にて無料開催中。
※火・水曜日は定休日となります。
」
【来場予約特典】
ウンノハウスへ初めてご来場の方限定!
Komons アロマティック食器用洗剤プレゼント!
お気軽にご予約くださいませ。
※ご来場特典プレゼント要件
・ウンノハウスへ初めてご来場の方限定。
・このページからご来場予約をされた方限定。
・他社様でご契約・ご建築済みの方は対象外となります。
・家づくりのご予定のない方は対象外となります
・他のご来場キャンペーンやプレゼントとの併用はできません。
・お一家族様1本とさせていただきます。
」
【お家でVR見学はこちら】

Infomation
基本情報

| 所在地 | 山形県山形市平清水一丁目1-66 |
|---|---|
| 電 話 | 023-627-3151 |
| 受 付 | 10:00~17:00(定休:火曜日・水曜日) |
| お問合せ | 0120-31-5283 ウンノハウス山形営業部 まで |
Spec
間取り/面積
- 1階床面積
- 166.03㎡m²(50.16坪)
- 2階床面積
- 87.57m²(26.45坪)
- 延床面積
- 253.60m²(76.61坪)







