UNNO HOUSE
- 福島市
- 岡山小学校
- 第三中学校
【平屋】岡部字根深No.89
建築中
付属内容
- トリプルガラスサッシ
- 寒冷地・暖房エアコン
- 外 構
- 家具・カーテン
- 照明・網戸
NOTE
福島エリア
【平屋】岡部字根深No.89
- 福島市
- 岡山小学校
- 第三中学校
- 価 格
- 4,230万円
- 建物面積
- 78.25㎡(23.67坪)
- 土地面積
- 204.99㎡(62.00坪)
- 築年月
- 2026年7月完成予定
岡山小まで徒歩4分
」
・第三中まで徒歩27分
・セブンイレブンまで徒歩5分
・まるいちフードセンター岡部店まで徒歩16分
2027年の春には分譲地のすぐ近くに
いちい・ハシドラッグも開業予定で、さらに便利になります!
」

※配置図は設計段階のイメージであり実際と異なる場合がございます。
」
住宅ローン返済例
月々 85,959円
ボーナス時 102,418円
※4230万円借入|40年返済|変動金利0.8%の場合
」

この他にも...
長期保証最長60年!
シロアリ保証最長30年!
住宅設備機器保証10年!
「建売が欲しいけど性能やサポート面で心配...」
そんなお客様に特におすすめの物件です!
」

リビング・ダイニング・キッチンがゆるやかに区切られるL字型のLDK ※完成イメージ
※リビング上部は勾配天井となります。
」
△建築中の今だからこそ!工事現場の見学もできますよ♪(要予約)
※この写真は別の現場の様子です。該当の物件とは異なります。
」
先行申込受付中です。
どうぞお気軽にお問い合わせください。
」
※写真はイメージであり実際と異なります。
※掲載パースはデータ保護措置が講じられた有料版AIで作成しています。
機密情報の学習利用はなく、セキュリティと権利関係がクリアな環境で制作しているため安全です
※社会情勢等により完成予定時期が遅れる場合がございます。あらかじめご了承ください。
関連物件
アクセス
周辺環境
-

岡山小学校 約290m(徒歩4分)
-

第三中学校 約1900m(徒歩24分)
-

岡山幼稚園 約450m(徒歩6分)
-

まるいちフードセンター岡部店 約1100m(徒歩14分)
-

カワチ薬品 福島東店 約1600m(車で4分)
-

セブン-イレブン 福島山口店 約300m(徒歩4分)
-

福島市役所東部支所 約650m(徒歩9分)
-

岡部クリニック 約450m(徒歩6分)
-

福島銀行岡部支店 約550m(徒歩7分)
物件概要
| 所在地 | 福島県福島市岡部字根深68番10 |
|---|---|
| 価格 | 4,230万円 |
| 販売戸数 | 1戸 |
| 建物面積 | 78.25㎡(23.67坪) |
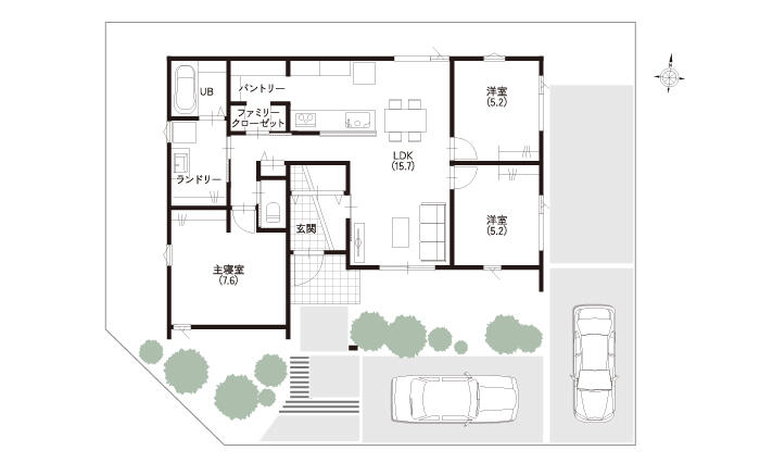
| 間取り | 3LDK |
| 建ぺい率・容積率 | 60%・200% |
| 建物構造 | 木造平屋建 |
| 完成時期(築年月) | 2026年7月完成予定 |
| 取引態様 | 売主 |
| その他負担金等 |
| 交通 | 福島交通「東部支所前」バス停まで徒歩9分 |
|---|---|
| 学区 | 岡山小学校・第三中学校 |
| 総戸数 | 133区画 |
| 土地面積 | 204.99㎡(62.00坪) |
| 接道 | 西・南(開発道路)6m |
| 用途地域 | 市街化調整区域(岡部根深地域地区計画) |
| 主たる設備 | 公営⽔道、公共下⽔、東北電⼒ |
| 建築確認番号 | 第R7確認建築SHIC0298号 |
| 情報登録日 | 2026年5月18日 |
| 次回更新予定日 |
備 考
・価格公表日:2026年4月18日
Others
福島エリアの建売物件
-
建 売
- 福島市
- 杉妻小学校
- 第一中学校
【平屋】永井川松木下No.2
4,080万円
南福島駅まで徒歩10分
2LDK74.52㎡(22.54坪)
2026年4月完成
-
建 売
- 福島市
- 第三小学校
- 第二中学校
桜木町No.2
3,980万円
第二中まで徒歩4分
3LDK85.29㎡(25.80坪)
2025年9月完成
-
建 売
- 福島市
- 吉井田小学校
- 岳陽中学校
【平屋】桜づつみサウススクエアNo.6
【価格改定】NEW:4,280万円
国体記念体育館入口バス停まで徒歩6分
3LDK78.50㎡(23.74坪)
2025年5月完成
-
建 売
- 福島市
- 吉井田小学校
- 岳陽中学校
桜づつみサウススクエアNo.8
4,140万円
国体記念体育館入口バス停まで徒歩6分
3LDK+サービスルーム96.00㎡(29.04坪)
2024年11月完成
-
建 売
- 福島市
- 吉井田小学校
- 岳陽中学校
仁井田字竹ノ花No.1
3,880万円
西道路まで車で1分
3LDK99.36㎡(30.05坪)
2025年1月完成
-
建 売
- 福島市
- 野田小学校
- 野田中学校
笹木野No.1
【早割価格】4,090万円
野田小まで徒歩3分
3LDK97.29㎡(29.43坪)
2026年5月完成予定
-
建 売
- 福島市
- 岡山小学校
- 第三中学校
岡部字根深No.86
4,370万円
岡山小まで徒歩4分
3LDK102.68㎡(32.87坪)
2026年7月完成予定
-
建 売
- 福島市
- 杉妻小学校
- 第一中学校
鳥谷野No.1
4,240万円
国道4号線交差点まで車で1分
3LDK100.19㎡(30.30坪)
2026年8月完成予定
-
建 売
- 福島市
- 杉妻小学校
- 第一中学校
鳥谷野No.9
4,630万円
国道4号線交差点まで車で1分
3LDK96.88㎡(29.30坪)
2026年8月完成予定



